engiplan

moradia
stada

HABITAÇÃO UNIFAMILIAR

Informações de projeto

DESCRIÇão

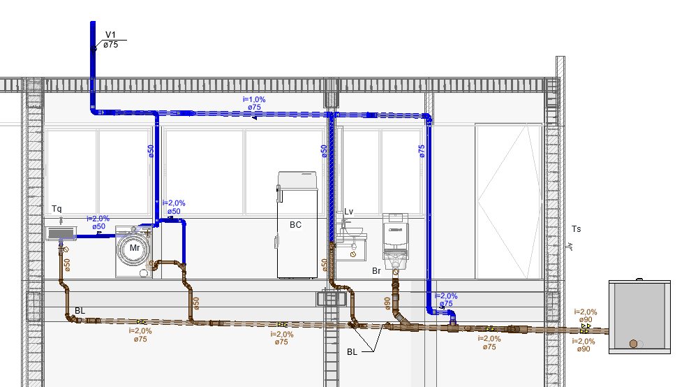
Construção de Moradia Unifamiliar. Foi realizado pela Engiplan o desenvolvimento dos projetos de especialidades de Estabilidade e das redes de abastecimento de água, de drenagem de águas residuais e de drenagem de águas pluviais e modelagem da Arquitetura em 3D.

LOCALIZAÇão

Santa Maria da Feira

cliente

Arq. AGC

Ano do Projeto

2024

ÁREA (m²)

356

Faça seu projeto de